联系我们
新闻资讯
产品中心
工程案例
门式起重机
MHL型5-32吨电动葫芦门式...
MH型电动葫芦门式起重机
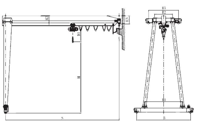
2-20吨MHB型电动葫芦半门...
MHbh型葫芦门式起重机
MHb型半门式起重机
每页6条
1
2
3
共3页17条