联系我们
新闻资讯
产品中心
工程案例
双梁起重机
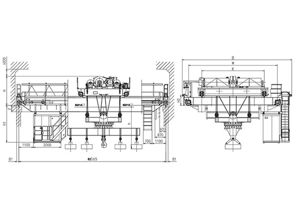
QZ型5~20t抓斗桥式起重机
QDY型74、20t冶金起重机
智能冶金上料桥式起重机
超长电磁挂梁桥式起重机
35~65t夹钳桥式起重机
40t下旋挂梁桥式起重机
每页6条
1
...
4
5
6
7
8
...
11
共11页66条