联系我们
新闻资讯
产品中心
工程案例
产品中心
QDY型16、3.2~20、5...
QD型500、100~550、...
300、75t通用桥式起重机
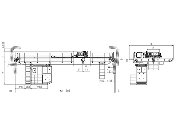
5~10t欧式吊钩桥式起重机
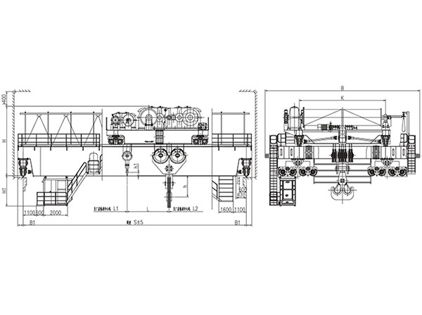
YZ型5~320t吊钩桥式铸造...
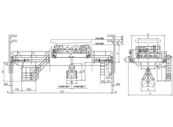
QZ型16~20t抓斗桥式起重...
每页6条
1
...
3
4
5
6
7
...
24
共24页144条